Варианты обустройства доковых зон складов (Часть 1)
Как на стадии проектирования, так и в ходе эксплуатации склада его владелец всегда стремится заполучить большое количество доковых зон, что позволяет поставить под разгрузку-погрузку максимальное количество автотранспортных средств. Эта проблема особенно актуальна для ритейлеров, дистрибуторов и 3PL-операторов.
Разберемся, что могут во время создания концепции сделать для решения этой задачи проектировщики, а также технологи проектных организаций. Вначале ответим на вопрос, какое наименьшее расстояние между автотранспортными средствами необходимо обеспечить согласно нормативным документам. За базу будем брать автомобили большой грузоподъемности – 20 т.
В соответствии с ОНТП 01-91 и СП 113.13330.2012 наименьшее расстояние между продольными сторонами автомобилей должно составлять не менее 0,80 м (рис. 1). В этом случае минимальный шаг постановки автотранспортных средств на разгрузку-погрузку будет составлять 3490 мм.
Учтем, что проем склада защищается от негативных последствий воздействия внешней среды с помощью докшелтеров (рис. 2). Ширина докшелтера составляет 3400 мм. Если исходить из нормативных документов, то между подвижными элементами конструкций, которыми являются докшелтеры (они складываются во время постановки автомобиля на разгрузку-погрузку), необходимо предусмотреть расстояние не менее 200 мм. В этом случае минимальный шаг постановки автотранспортных средств на разгрузку-погрузку будет составлять 3600 мм.
В случае установки открытых приямков под доклевеллеры (их еще называют почтовыми) (рис. 3) именно их размеры будут диктовать шаг постановки автотранспортных средств на разгрузку-погрузку. В этом случае его минимальная величина составит 4000 мм, расстояние между докшелтерами увеличивается до 520 мм, а расстояние между продольными сторонами автомобилей – до 1310 мм (рис. 4). Закрытый приямок показан на рис. 5.
Определив минимальный шаг установки доковых зон, рассмотрим второй вопрос – как шаг установки доковых зон наряду с шагом колонн мезонина, в случае его наличия или отсутствия, будет влиять на топологию склада, в частности, зоны приемки и экспедиции, а также объем хранения.
Рассмотрим однообъемные здания склада (рис. 6) – здания, в которых фермы перекрывают всю площадь склада без дополнительных стен. Одноэтажные/однообъемные здания, сооружения, разнообразные устройства позволяют установить любое стеллажное (конвейерное и т. п.) оборудование, в т.ч. многоэтажные (мезонинные) стеллажные системы и предназначены для приемки, временного размещения и хранения поступивших на них товаров и грузов.
Для моделирования различных вариантов установки доковых зон и шага колонн для мезонина (в случае его наличия) рассмотрим уже имеющиеся проекты таких девелоперов, как MLP, Raven Russia, PNK Group, RadiusGroup, Logistics Partners.
При определении топологии зон приемки и хранения будем использовать поддон размерами 1200 х 800 х 150 мм. Состав доковой зоны: доклевеллер (открытый приямок), докшелтер для автотранспортных средств большой грузоподъемности, секционные ворота, отбойники, направляющие ворот, тепловая или воздушная завеса. Шаг основных колонн по фронту (оси 23 и 24) – 24 м. Ширина мезонина составляет 12 м.
При размещении доковых зон с шагом 4 м мы должны установить дополнительные колонны (фахверковые). Фахверк – это тип строительной конструкции, в которой несущей основой служит пространственная секция из наклонных (под различным углом) балок, ферм. В случае использования мезонина шаг его колонн также будет составлять 4 м.
Исходя из того, что шаг основных колонн составляет 24 м, мы можем разместить по разгрузо-погрузочному фронту 6 доковых зон (между осями 23 и 24). Таким образом, появляются дополнительные оси 23/1, 23/2, 23/3, 23/4 и 23/5.
Будем считать, что одно автотранспортное средство большой грузоподъемности может вместить до 33 палет. Тогда в зоне приемки или экспедиции при одновременной разгрузке или погрузке можно расположить 198 палет. Из рис. 7 видно, что под мезонином палеты встают только в один ряд, но такое размещение не является оптимальным, так как расстояние Ast (расстояние рабочего проезда) между ними составляет 2,8 м, что делает невозможным обработку палет с помощью механизированного парка погрузочной техники и позволяет использовать только ручные гидравлические тележки.
Поэтому для размещения палет в зоне приемки или разгрузки необходимо будет выходить за рамки мезонина, углубляться внутрь склада, и на расстоянии 36 м от внешней стены мы можем расставить всего 20 секций (по 3 палеты в секции) палетных стеллажей.
Рассмотрим второй вариант размещения доковых зон, но на этот раз примем шаг колонн мезонина равным 8 м (рис. 8).
В этом случае количество дополнительных осей уменьшается до двух: 23/1 и 23/2. Исходя из того, что шаг основных колонн составляет 24 м, можно разместить по разгрузо-погрузочному фронту 6 доковых зон (между осями 23 и 24). В этом случае топология зоны приемки или экспедиции улучшается, и мы можем расположить как под мезонином, так и за его пределами около 204 палет в 3 ряда, а расстояние Ast между палетами будет равным 4,2 м. На расстоянии 36 м от внешней стены размещаются 30 секций (по 3 палеты в секции) палетных стеллажей.
Таким образом, увеличение шага колонн положительно сказывается как на интенсивности грузооборота (мы можем разместить порядка 6 доковых зон в шаге основных колонн 24 м), так и на количестве секций стеллажей – объем хранения увеличивается.
С другой стороны, как ни странно, значительно повышается стоимость строительства склада. Это объясняется тем, что при увеличении шага колонн мезонина растет металлоемкость балок, поддерживающих мезонин. И при обеспечении несущей способности мезонина на уровне 1000–1200 кг/м2 стоимость строительства мезонина растет по сравнению с предыдущим вариантом в 1,8–2 раза.
Рост металлоемкости балок под мезонином, который выражается в увеличении сечения самих балок (толщина и высота), – не одна из причин повышения стоимости строительства как мезонина, так и склада в целом. Дело в том, что высота установки мезонина конструктивно связана с количеством маршей и длиной ведущей на него лестницы. Помимо прочего, чем выше балки под мезонином, тем выше мы устанавливаем мезонин, обеспечивая возможность проезда под ним подъемно-транспортного оборудования.
Наконец, можно рассмотреть и такой вариант, как отсутствие мезонина.
Исходя из того, что шаг основных колонн составляет 24 м, в этом варианте мы можем разместить по разгрузо-погрузочному фронту 6 доковых зон (между осями 23 и 24). Тогда топология зоны приемки или экспедиции улучшается, и есть возможность расположить под мезонином и за его пределами около 204 палет в 3 ряда, при этом расстояние Ast между палетами составит 4,2 м. На расстоянии 36 м от внешней стены размещаются 40 секций (по 3 палеты в секции) палетных стеллажей. Мы видим, что отсутствие мезонина положительно сказывается как на интенсивности грузопереработки (можно разместить порядка 6 доковых зон при шаге основных колонн 24 м), так и на количестве секций стеллажей – в итоге объем хранения увеличивается, при этом значительно уменьшается стоимость возведения склада.
В этом случае можно использовать различные варианты размещения офисных помещений. Отсутствие мезонина также положительно сказывается на конструктивных элементах самих доковых зон: мы можем применять секционные ворота с вертикальным подъемом, устанавливать воздушные или тепловые завесы над проемом для разгрузки или погрузки транспортных средств.
Помимо прочего, увеличивается интенсивность грузооборота товара (палет) в районе зон приемки и экспедиции. Это происходит за счет того, что мы можем использовать одно и то же подъемно-транспортное оборудование (ПТО) как для обработки товара в зонах приемки, экспедиции и хранения, так и для размещения товара в зоне хранения, тем самым увеличивая производительность труда.
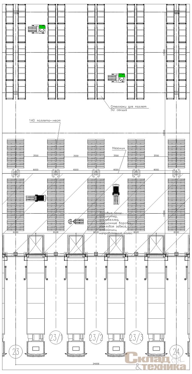
Нетрудно заметить, что при минимальном шаге доковых зон 4 м логично было рассмотреть вариант с расстановкой доковых зон с шагом 6 м, это относится и к шагу колонн под мезонином (рис. 10). По сути данная схема, с одной стороны, является неординарной, с другой – практически представляет собой вариант стандартного размещения доковых зон и колонн под мезонином. Это выражается в том, что количество доковых зон снижается до четырех.
Исходя из того, что шаг основных колонн составляет 24 м, мы можем разместить по разгрузо-погрузочному фронту 4 доковые зоны (между осями 23 и 24). Число дополнительных осей – 23/1, 23/2 и 23/3. В этом случае в зоне приемки или экспедиции мы можем разместить под мезонином и за его пределами порядка 140 палет в 2 ряда (4 автомобиля по 33 палеты), а расстояние Ast равно 3,5 м. На расстоянии 36 м от внешней стены размещаются 50 секций (по 3 палеты в секции) палетных стеллажей.
Можно увидеть, что в этом варианте интенсивность грузооборота по сравнению с предыдущими вариантами несколько снижается, но значительно увеличивается объем хранения.
Таким образом, мы приходим к классическому варианту выбора между двумя критериями – интенсивностью грузооборота и объемом хранения. Повторюсь, что данный вариант размещения доковых зон и колонн мезонина в настоящий момент является практически стандартным. Это связано с тем, что он является наиболее экономически обоснованным для девелопера по стоимости строительства. Мы помним, что девелопер, входя в проект по строительству склада, в принципе не понимает, что по факту будет храниться (какой товар), каков будет грузооборот, его объем и интенсивность, поэтому пытается строить что-то среднее, с приемлемой стоимостью и возможностями для будущего арендатора.
В практике встречаются проекты с различным шагом доковых зон и соответственно шагом колонн мезонина (один из них показан на рис. 11). В данном проекте между основными осями 9С и 13С (шаг основных колонн 24 м) располагается 5 доковых зон. 4 доковые зоны размещены с шагом 4,5 м и одна – с шагом 6 м. Этот вариант позволяет иметь, как говорилось выше, 5 доковых зон, но обработка товара в зонах приемки и экспедиции под мезонином не позволяет использовать механизированные типы ПТО, так как расстояние Ast составляет всего 2,05 м. Т.е. обработка палет возможна только с помощью ручных гидравлических тележек.




